



Genossenschaftshaus Hardstrasse
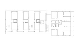
Das Genossenschaftshaus funktioniert als Ensemble bestehend aus zwei Gebäudeteilen: Der Kopfbau zum zentralen Grünraum markiert die Adresse und beherbergt im Erdgeschoss die gemeinschaftlichen Nutzungen bestehend aus Salon, Werkstatt und Waschküche. Als räumliche Reihung funktioniert der längsorientierte Flügel. Dessen serielle Typologie besteht im Sockel aus Maisonette-Wohnungen, die zur Gasse jeweils über einen zweigeschossigen Wohnraum verfügen. In den darüberliegenden Obergeschossen sind hauptsächlich Kleinwohnungen angeordnet, die jeweils über einen nördlichen Laubengang erschlossen sind. Sie profitieren von einer beidseitigen Belichtung. Im Kopfbau befinden sich jeweils zwei Eckwohnungen mit drei oder vier Zimmern. Das Haus ist als Holzbau konzipiert, was sich in den rationellen Spannweiten der Decken ausdrückt, die die Typologie mitbestimmen. Die Fassade ist ebenfalls hölzern gedacht: Die rotbraune Farbe der Holzlattung kontrastiert zum intensiven Grün der umgebenden Bäume. Die Balkon- und Laubenschichten sind als leichter, selbsttragender Stahlbau konstruiert. Die ReUse-Fenster aus Massivholz der ehemaligen Gemeindeverwaltung werden situativ mit neuen Massivholzfenster ergänzt.
Neubau, 2024-
Areal Hardstrasse, Birsfelden
in Arbeitsgemeinschaft mit Nussbaumer Trüssel
Bauherrschaft
Wohnbaugenossenschaft Hagnau, Birsfelden