







Ein Haus WOBA
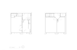
Das zweigeschossige Reihenhaus von Artaria & Schmidt wurde in zwei Etappen originalgetreu restauriert. Das Haus der "Wohnkolonie Eglisee" wurde im Rahmen der Wohnungsausstellung Basel (WOBA) 1930 erbaut. Auf knappen 45 Quadratmetern Wohnfläche wurde das Programm der "Wohnung für das Existenzminimum" umgesetzt. Die Restaurierung umfasste sämtliche Oberflächen, Holzwerk, Elektroinstallationen, Küche und die Fenster.
Restaurierung
Im Surinam 126, 4058 Basel
2018– 2019
Bauherrschaft
Verein Ein Haus WOBA
Eigentümerschaft
Wohngenossenschaft Eglisee